SOLD! New Build! (Active)
Nancy Angus
Upper Cape Realty
P.O. Box 270
Buzzards Bay, MA, 02532
United States
WELCOME HOME to 8 Puritan Avenue, Wareham
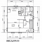
There is a sparkling new home in your future! This delightful 3 bedroom, 2 bath colonial home is under construction and is being offered by a well established Cape builder. Features include a rocking chair porch and a side yard patio, full walk-in pantry, first floor laundry gas heat and central air and low maintenance finishes that will make your daily life so much easier!
#newbuild #newconstruction #warehamrealestate #homeunderthehammer #brandnew
UPPER CAPE REALTY | 508-759-2121 | info@uppercaperealty.com
Nancy Angus
As Managing Broker at Upper Cape Realty, Nancy believes that real estate is much more than simply buying or selling a home. To her, a key element of real estate is developing relationships and building trust with her clients. When you meet Nancy you will quickly realize you have gained a true friend! She knows how to listen and always puts the needs and wants of her clients first. Nancy truly enjoys working with her clients and helping them through the process of buying or selling a home. Whether your move is across the street or across the country, Nancy and her staff are dedicated to listening to your needs and to serving you with honesty, integrity, and professionalism. Upper Cape Realty has been serving your neighbors for over 50 years - let us work for you!
Upper Cape Realty
P.O. Box 270
Buzzards Bay , MA 02532
United States